高层民用建筑设计防火规范(2005修订版)
编号:GB50045-95(2005年版)8.5
通风和空气调节
8.5.1 空气中含有易燃、易爆物质的房间,其送、排风系统应采用相应的防爆型通风设备;当送风机设在单独隔开的通风机房内且送风干管上设有止回阀时,可采用普通型通风设备,其空气不应循环使用。
8.5.2 通风、空气调节系统,横向应按每个防火分区设置,竖向不宜超过五层,当排风管道设有防止回流设施且各层设有自动喷水灭火系统时,其进风和排风管道可不受此限制。垂直风管应设在管井内。
8.5.3 下列情况之一的通风、空气调节系统的风管道应设防火阀:
8.5.3.1 管道穿越防火分区处。
8.5.3.2 穿越通风、空气调节机房及重要的或火灾危险性大的房间隔墙和楼板处。
8.5.3.3 垂直风管与每层水平风管交接处的水平管段上。
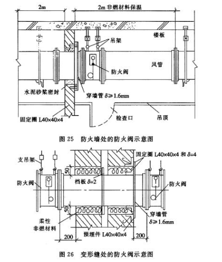
8.5.3.4 穿越变形缝处的两侧。
8.5.4 防火阀的动作温度宜为70℃。
8.5.5 厨房、浴室、厕所等的垂直排风管道,应采取防止回流的措施或在支管上设置防火阀。
8.5.6 通风、空气调节系统的管道等,应采用不燃烧材料制作,但接触腐蚀性介质的风管和柔性接头,可采用难燃烧材料制作。
8.5.7 管道和设备的保温材料、消声材料和粘结剂应为不燃烧材料或难燃烧材料。
穿过防火墙和变形缝的风管两侧各2.00m范围内应采用不燃烧材料及其粘结剂。
8.5.8 风管内设有电加热器时,风机应与电加热器联锁。电加热器前后各800mm范围内的风管和穿过设有火源等容易起火部位的管道,均必须采用不燃保温材料。
条文说明
8.5 通风和空气调节
8.5.1 基本保留原条文。空气中含有容易起火或爆炸的物质,当风机停机后,此种物质易从风管倒流,将这些物质带到风机内。因此,为防止风机发生火花引起燃烧爆炸事故,应采用防爆型的通风设备(即用有色金属制造的风机叶片和防爆的电动机)。
若送风机设在单独隔开的通风机房内,且在送风干管内设有防火阀及止回阀,能防止危险物质倒流到风机内,通风机房发生火灾后,不致蔓延到其它房间时,可采用普通型非防爆的通风设备,但通风设备应是不燃烧体。
8.5.2 本条是沿用原规范的内容。
一、烟气的垂直上升速度约为3~4m/s。阻止高层建筑火灾向垂直方向蔓延,是防止火灾扩大的一项重要措施。根据国内外高层建筑的火灾实例,通风、空气调节系统穿越楼板的垂直风道是火势垂直蔓延的主要途径之一,如我国某宾馆由于电焊烧着风管可燃保温层引起火灾,烟火沿风管竖向孔洞蔓延,从底层烧到顶层(七层),大火延烧了近9个小时,造成了巨大损失。据此对风管穿越楼层和层数应加以限制,以防止火灾的竖向蔓延,同时也为减少火灾横向蔓延。故本条规定“通风、空气调节系统,横向应按每个防火分区设置,竖向不宜超过五层”。
二、根据各地意见,有些建筑,如旅馆、医院、办公楼等,多采用风机盘管加进风式空气调节系统,一般进风及排风管道断面较小,密闭性较强,如一律按规定“竖向不超过五层”,从经济上和技术处理上都带来不利。考虑这一情况,本条又规定“当排风管道设有防止回流设施且各层设有自动喷水灭火系统时,其进风和排风管道可不受此限制”。
至于“垂直风管应设在管井内”的规定,是增强防火能力而采取的保护措施。
8.5.3 本条是以原规范第7.3.2条为基础重新改写的。
一、高层建筑的通风、空调机房是通风管道汇集的房间,也是火灾蔓延和场所,为了阻止火势通过风管蔓延扩大,本条规定了在通风、空气调节系统中设置防火阀的部位。其中“重要的或火灾危险性大的房间”是指性质比较特殊的房间(如贵宾休息室、多功能厅、大会议室、易燃物质试验室、储存量较大的可燃物品库房及贵重物品间等)。本条第8.5.3.4款的规定是为有效阻隔火势、保证防火阀的可靠性而提出的必要措施。防火阀的安装要求有单独支吊架等措施,以防止风管变形影响防火阀关闭,同时防火阀能顺气流方向自行严密关闭。如图25、26所示。

8.5.3.1 本款原文为“管道穿越防火分区的隔墙处”,因为防火分区处不仅有墙体,还可能有防火卷帘、水幕等特殊防火分隔设施,表述不全面。现在修订为“管道穿越防火分区处”,表达就完整确切了。
8.5.4 关于防火阀动作温度的规定,根据民用建筑火灾初始温度状态,并参照国际上此类防火阀的动作温度通常为68~72℃,本规范仍沿用原规范值定为70℃。此温度一般是按比通风、空调系统在正常工作时的最高温度约高25℃确定的,而民用建筑内的最高送风时的温度一般为45~50℃,所以定为70℃是适宜的。这一温度与国家标准图防火阀的动作温度以及自动喷水灭火系统的启动温度也是一致的。
8.5.5 本条是在原规范第7.2.4条的基础上改写的。为防止垂直排风管道扩散火势,本条规定“应采取防止回流的措施”。根据国内工程的实际做法,排风管道防止回流的措施有下列四种:
1.加高各层垂直排风管的长度,使各层的排风管道穿过两层楼板,在第三层内接入总排风管道。如图27(a)所示。

2.将浴室、厕所、卫生间内的排风竖管分成大小两个管道,大管为总管,直通屋面;而每间浴室、厕所的排风小管,分别在本层上部接入总排风管,如图27(b)所示。
3.将支管顺气流方向插入排风竖管内,且使支管到支管出口的高度不小于600mm,如图27(c)所示。
4.在排风支管上设置密闭性较强的止回阀。
8.5.6 本条是以原规范第7.2.5条为基础并参照《建规》有关条文改写的。首先明确了风机等设备和风管一样均应采用不燃材料制成。高层建筑中,通风、空气调节系统和管道是火灾蔓延的重要途径,国内外都有经通风管道蔓延火势的教训,尤其采用可燃材料的通风系统,扩大火灾的速度更快,危害更大。如东北某大厦厨房排风系统、排风罩、风管及通风机均采用阻燃型玻璃钢,因烧菜的油火引燃了排风罩,又经风管、风机一直烧到屋面。国外也有类似情况,造成过重大伤亡的火灾事故。为此本条对风管和风机等设备的选材提出了严格要求。
8.5.7 本条基本保留了原条文的内容。管道保温材料着火后,不仅蔓延快,而且扑救困难,如国内某建筑采用可燃泡沫塑料作风道保温材料,检修风道时由于焊接不慎烤着保温层起火,迅速蔓延,到处冒烟,却找不到起火部位,扑救困难。经试验,可燃泡沫塑料燃烧速度高达每分钟十几米。又如某饭店地下室失火,就是火种接触冷冻管道可燃泡沫塑料保温层而引起的。因此设计时对管道保温材料(包括粘结剂)应给予高度重视,一般首先考虑采用不燃保温材料,如超细玻璃棉、岩棉、矿渣棉、硅酸铝棉、膨胀珍珠岩等;但考虑到我国目前生产保温材料品种构成的实际情况,完全采用不燃材料尚有一定困难,因此管道和设备的保温材料、消声材料,也允许采用难燃材料。但粘结剂和保温层的外包材料仍应采用不燃烧材料,如玻璃布等。
对穿越变形缝两侧各2m范围,其保温材料及其粘结剂应要求严些,应当采用不燃烧材料。
8.5.8 本条基本保留原条文。
一、据调查,有的小型、中型通风、空调管道内,安装有电热装置,用于加温,如使用后忘记拔掉插销,导致发热,会引起火灾,造成较大损失。为了保证安全,作了此条规定。
二、电热器前后各800mm范围内的风管保温材料应采用不燃烧材料,主要根据国内工程实际做法和参考日本、美国等规范、资料而提出的。经十几年的实践,是行之有效的,故予以保留。