泡沫灭火系统施工及验收规范
编号:GB50281-2006
颁布时间:2006/11/1
是否常用:是
是否有效:已废止
分类:消防设施
2
术语
2.0.1 泡沫比例混合器(装置) foam
proportioner(device )
使水与泡沫液按比例形成泡沫混合液的设备(相关设备和附件组成)。
2.0.2 泡沫产生装置 foam
generating device
使泡沫混合液产生泡沫的设备的统称。
2.0.3 泡沫液储罐 foam concentrate storage
tank
能为泡沫灭火系统提供泡沫液的容器设备。
2.0.4 泡沫导流罩 foam guiding cover
安装在外浮顶储罐罐壁顶部,能使泡沫沿罐壁向下流动和防止泡沫流失的装置。
2.0.5 泡沫降落槽 foam descending
groove
安装在固定顶储罐内,使抗溶性泡沫顺其向下流动的阶梯形装置。
2.0.6 泡沫溜槽 foam flowing groove
安装在固定顶储罐内壁上,使抗溶性泡沫沿其向下流动的槽型装置。
条文说明
2 术语
2.0.1 泡沫比例混合器(装置)。
新增条文。这里指的是能够使水与泡沫液按比例形成泡沫混合液的设备,称为泡沫比例混合器,而由泡沫比例混合器及相关设备和附件组成的称之为泡沫比例混合装置。种类有环泵式比例混合器、管线式比例混合器、压力式比例混合装置(由压力式比例混合器和泡沫液压力储罐及附件组成,其中分无胶囊和有胶囊两种,无胶囊式又分有隔板和无隔板两种)、平衡式比例混合装置(分整体式和分体式两种),其中泡沫液泵又分电动和水力驱动式两种)。每种泡沫比例混合器(装置)都有型号,设计者根据系统的具体情况进行选择。
2.0.2 泡沫产生装置。
原规范第
2.0.1
条。这里指的是能够产生低倍数、中倍数、高倍数泡沫的设备,统称泡沫产生装置。低倍数泡沫灭火系统有横式、立式泡沫产生器、高背压泡沫产生器、泡沫喷头、固定式泡沫炮(包括手动、电动),还有泡沫枪、泡沫钩枪,这两种是用在移动系统上,本规范未作规定。中倍数泡沫灭火系统有中倍数泡沫产生器。还有用在移动系统上的中倍数泡沫枪(也称手提式中倍数泡沫产生器),本规范也未作规定。高倍数泡沫灭火系统有高倍数泡沫产生器。每种泡沫产生器、泡沫喷头、固定式泡沫炮都有型号,设计者根据系统的具体情况进行选择。
2.0.3 泡沫液储罐
新增条文。它是泡沫液的储存设备,分常压储罐和压力储罐两种。常压储罐用钢质或耐腐蚀材料制作;压力储罐为钢质,由具备资质的制造厂家制作。容量大小和储罐的形式由设计者设计或根据产品的系列选定。
2.0.4 泡沫导流罩
原规范第 2.0.3
条。泡沫导流罩是应用在外浮顶储罐上的一种装置,因为外浮顶储罐的浮顶是随储存介质液位的高低浮动,为了不减少介质的储存数量,泡沫产生器出口的泡沫管道,应安装在外浮顶储罐罐壁的顶部,因此,必须设置专用装置,既能使泡沫沿罐壁向下流动,又能防止泡沫被风吹走而流失,这个装置就是泡沫导流罩。以前,因为没有封闭称作泡沫防护板。目前我国没有泡沫导流罩的定型产品,都是由设计单位出图加工,形状和尺寸都不统一。而国外某些公司都有定型图纸和系列产品,如英国的安格斯公司,称为泡沫倾注器,见图1
;日本干化学消防公司的浮顶油罐抗震 J 型泡沫出口安装图,见图2 。它们都与泡沫产生器配套使用,参考时要注意型号。


注:1 泡沫出口,材料
SS41;
2 泡沫出口固定板,材料SS41;
3 固定螺栓螺母,材料SS41,4 组M10×30;
4 适用泡沫产生器容量200L/min 、350L/min 。
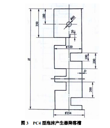
2.0.5 泡沫降落槽。
原规范第 2.0.4
条。泡沫降落槽是水溶性液体储罐内安装的泡沫缓冲装置中的一种。因为水溶性液体都是极性溶剂,如:醇、酯、醚、酮类,它们的分子排列有序,能夺取泡沫中有OH-、H+离子,而使泡沫破坏,故必须用抗溶性泡沫液才能灭火,同时又要求泡沫平缓地布满整个液面,并具有一定的厚度,所以要求设置缓冲装置以避免泡沫自高处跌入溶剂内,由于重力和冲击力造成的泡沫破裂,影响灭火。常用的泡沫降落槽,其尺寸是与泡沫产生器配套设计的。我国常用的如图3
~图5 所示。在设计未规定时可参照此图。图中没有的PC24型(或更大型号)泡沫产生器降落槽可按比例放大。

注:图中的H 和D 是根据储罐的高度和储存介质的具体情况决定的。

注:图中的H 和D 是根据储罐的高度和储存介质的具体情况决定的。

注:图中的H 和D 是根据储罐的高度和储存介质的具体情况决定的。
2.0.6 泡沫溜槽
原规范第 2.0.5
条。泡沫溜槽是在泡沫降落槽之后发展起来的,它的作用与泡沫降落槽相同,这两种形式的泡沫缓冲装置,在设计时可任选一种。它的尺寸是通过计算决定的,泡沫溜槽的横截面积等于或略大于泡沫产生器出口管横截面积与发泡倍数的乘积。在设计未规定时可参照图6
。而国际标准 ISO 、美国 NEPA11 和日本等标准中都有规定,在现行国家标准《低倍数泡沫灭火系统设计规范》GB
50151的条文说明中已有说明。本规范不再叙述。
